Suspicion

Apple TVFive ordinary Brits are accused of kidnapping the son of a prominent U.S. media mogul. They embark on a desperate race against time to prove their innocence, but will anyone believe them - and are they telling the truth?

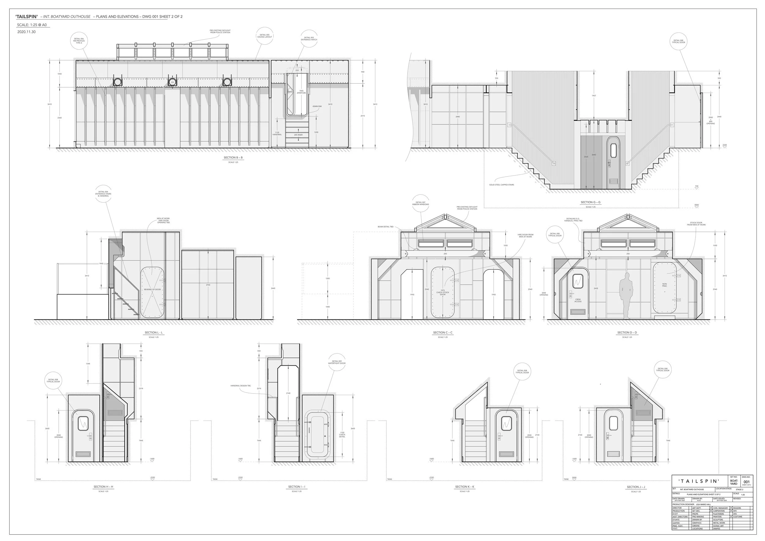
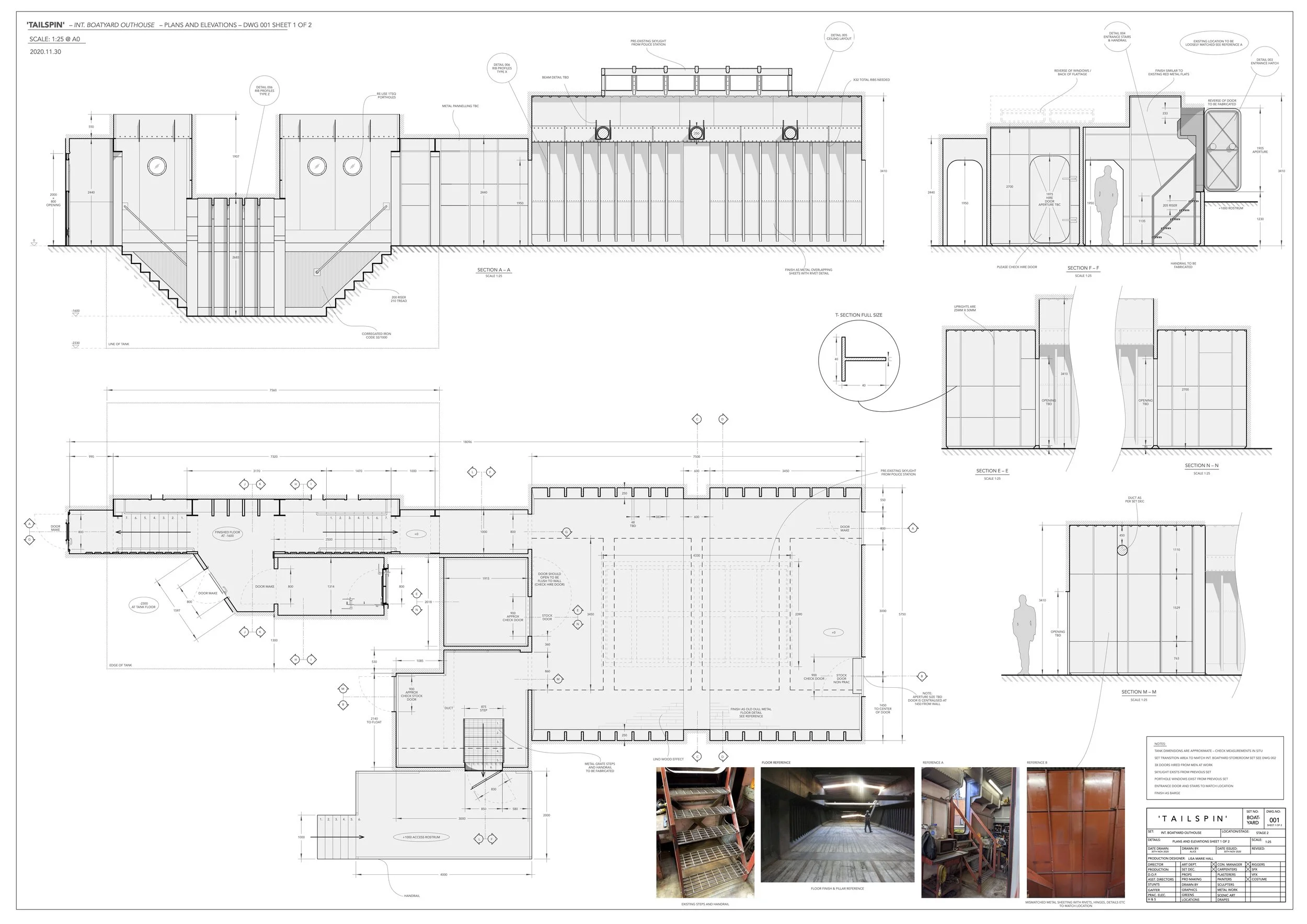
Production Designer: Lisa Marie Hall
SAD: Sion Clarke

Apple TV

Project Type: TV Series
Location: Ealing Studios, London, UK
Role: Draughtsperson
2020

Previous
Previous

House Of The Dragon: Season 1